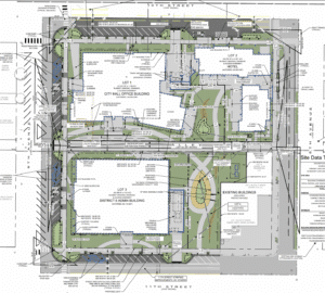
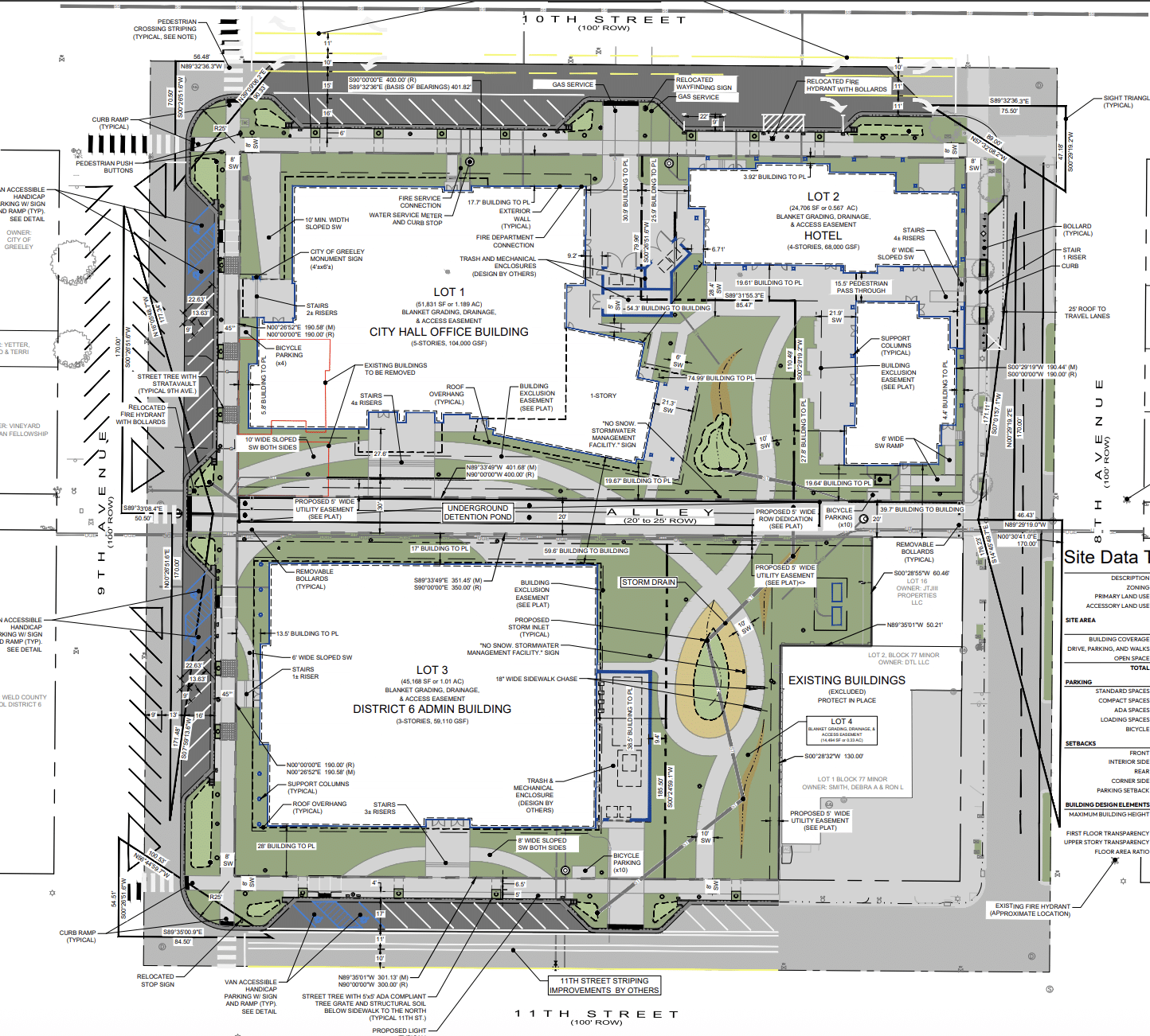
Greeley Civic Campus
Between 8th and 9th avenues and 10th and 11th streets
Current
Between 8th and 9th avenues and 10th and 11th streets
Greeley
CO
City of Greeley
Richmark Vertikal LLC
OMBRE civil engineering
LoganSimpson
3 acres
Late 2026
Late 2028
Related News
7-Eleven planned in west Greeley subdivision
What was expected to be the site of Greeley’s westernmost convenience store continues, but now with plans under a different franchise. Originally planned as a Circle K, the site at 101st Avenue and 10th Street has changed to be a 7-Eleven, according to plans filed recently with the City of Greeley.
City’s first tiny home project proposed in east Greeley
A Greeley developer plans to wedge 40 tiny homes onto a 1.3-acre lot adjacent to a townhome development in east Greeley.
Initial plans for Downtown Civic Campus filed with City of Greeley
The City of Greeley has provided the first look at the beginnings of its new Civic Campus, which will eventually transform five city blocks to make way for a new City Hall, administrative offices of Greeley-Evans School District 6 and a Weld County Justice Center and a parking garage.
Car-wash franchise exploring a location in west Greeley
Another car wash may make a splash as the westernmost place in Greeley to wash and vacuum your vehicle.
Developers plan 7 Brew drive-thru coffee shop in Greeley Walmart lot
Greeley may soon get a new drive-thru coffee joint. Developers have planned a new 7 Brew Drive-Thru Coffee facility right off of 23rd Avenue on the eastern edge of the Walmart Supercenter parking lot.






